Réminiscences bocagères
Quartier de 90 logements sur le secteur « Lycée Nord » — Saint-Gilles-Croix-de-VieLa ville a retenu le groupe Lamotte pour la réalisation d’un nouveau quartier d’habitation dans le prolongement des aménagements récents à l’ouest de la commune (lycée du Pays de Saint-Gilles-Croix-de-Vie, quartier des Vergers d’Eole, … ).
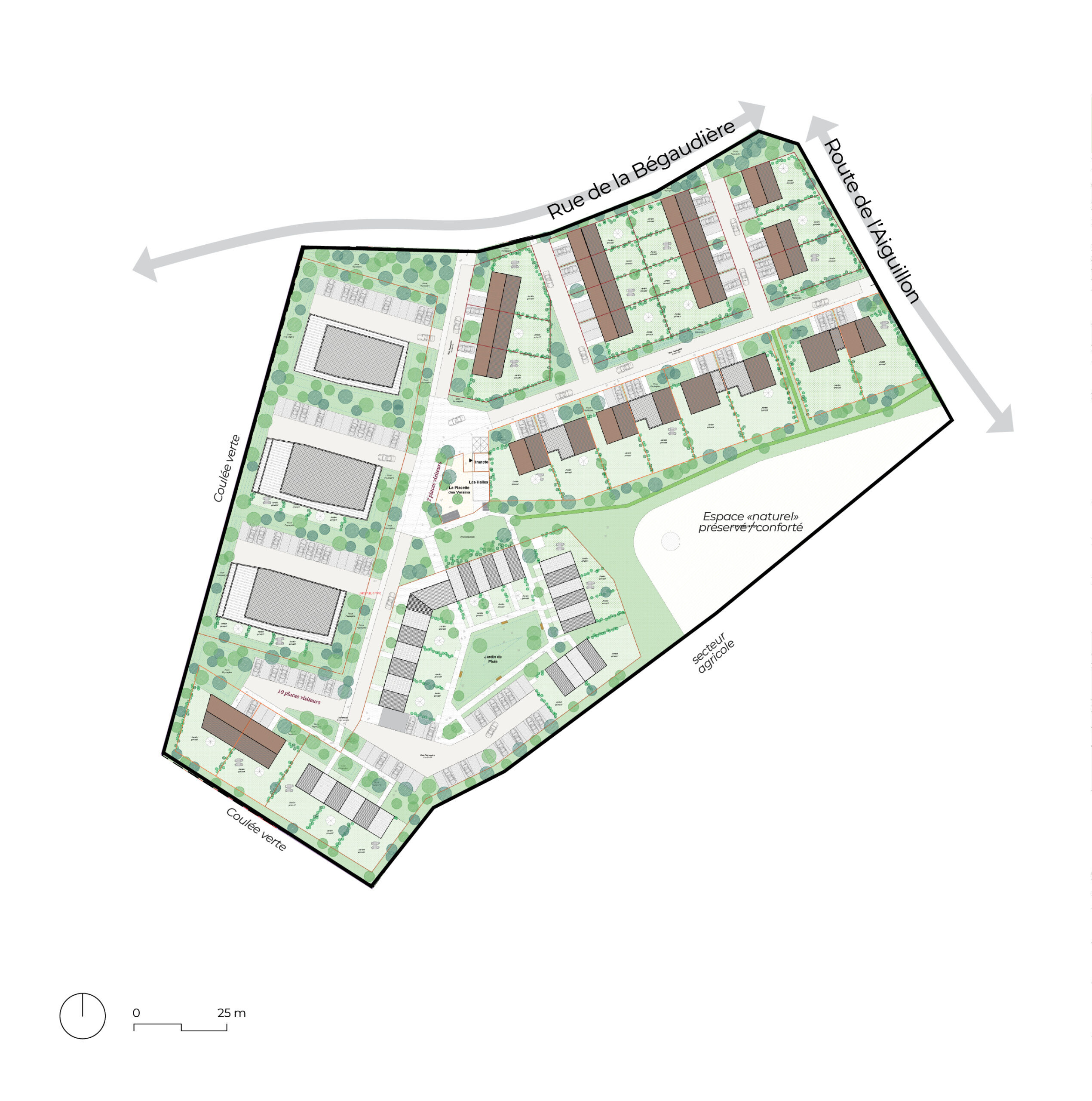
Masterplan en étroite collaboration avec JBA architectes a imaginé un quartier ancré sur les lignes bocagères historiques du site, tout en articulant les logements autour d’espaces à enjeux environnementaux préservés. Du collectif aux maisons individuelles, le positionnement fin des volumes crée une structure de quartier cohérente préservant l’intimité de chacun.
Équipe
masterplan (mandataire) Jba architecte FAAR paysagiste OCE BET VRD Accete BET environnement Cabinet Milcent-Petit GéomètreÉtat
2023 En coursLocalisation
Saint-Gilles-Croix-de-VieMaîtrise d’ouvrage
LamotteUne interface entre ville, activité et ruralité : S’ancrer sur les lisières
En s’insérant en lisière urbaine, le projet veille à s’intégrer finement sur ses abords et à développer un aménagement cohérent dans son cœur. Ainsi, il appuie ses lignes directrices sur les traces des anciennes haies bocagères, encore perceptible dans les écoulements du site. Il développe les formes urbaines plus hautes en ouverture sur la coulée verte généreuse à l’ouest et privilégie des constructions plus basses sur les limites plus rurales. Ainsi, depuis la rue de la Bégaudière, l’entrée de ville se fait avec une variation progressive allant des maisons individuelles jusqu’aux logements collectifs annonçant les immeubles existants bordant la rue aux abords du lycée.
S’appuyer sur les traces du passé bocager du site
Les éléments structurants du projet sont guidés par les paramètres constituants du site ( Zones humides, haies, orientation, coulée verte en projet, …). Ils sont autant de marqueurs guidant la conception, dans le souci d’une intégration du projet au plus près de son contexte et de s’inscrire dans la logique «éviter, réduire, compenser».
Les noues paysagères qui structureront le projet font ainsi écho à ces tracés historiques du site.
